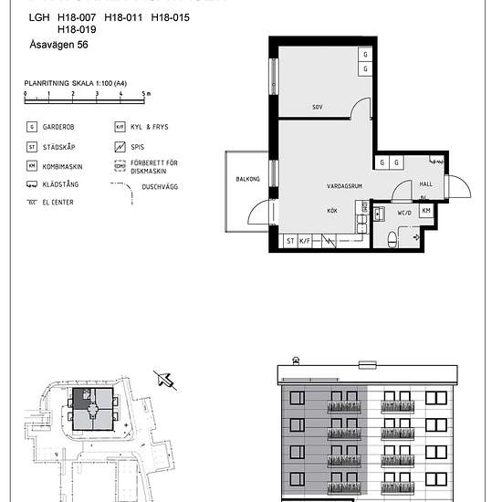
2 room apartment in Henån
-
Area
- 43 m²
-
Property type
- Apartment
-
Rooms
- 2 rooms
Henån är Orust centralort med ca 2000 invånare. Här finns ca 30 affärer och butiker, bank, apotek och vårdcentral. I Henån har Stiftelsen Orustbostäder närmare 300 hyresrättslägenheter fördelade på tretton lägenhetsområden både i centrum och en liten bit utanför, som på Ängsberget och Nävekärr.
- Rent
- kr7,520 per month
- Location
- 47332, Henån
- Rental period
- -
- Verified landlord
- Yes
- Date
- 9 days ago
- Available
- 2026-03-01
- Utilities
- Contact landlord
- Deposit
- Contact landlord
- Prepaid rent
- Contact landlord
Location