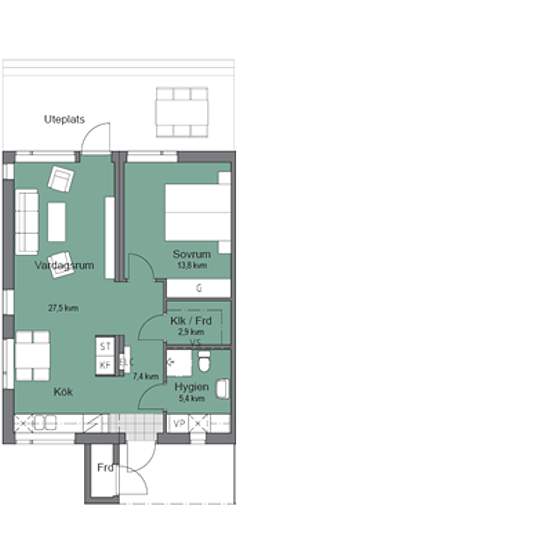
2 room apartment in Eket
-
Area
- 59 m²
-
Property type
- Apartment
-
Rooms
- 2 rooms
Dessa parhus är byggda 2020 och är en etapp av tre som Örkelljungabostäder planerar att bygga. Parhusen är placering på Prästbacken mitt emot skolan. Eket ligger strax söder om Örkelljunga med närhet till allmänna kommunikationer och vacker natur. Lägenheterna ligger endast ett stenkast från skola, belyst motionsspår och utegym. I närområdet inryms även en 27 håls golfbana, kulturhistoriska Ingeborrarpsgården och fina strövområden. Till lägenheterna ingår även en egen lite tomt med altan, gräsmatta samt infart med parkering. Detta innebär...
- Rent
- kr8,052 per month
- Location
- 28695, Eket
- Rental period
- -
- Verified landlord
- No
- Date
- 29 days ago
- Available
- 2026-02-02
- Utilities
- Contact landlord
- Deposit
- Contact landlord
- Prepaid rent
- Contact landlord
Location