2 room apartment in Bunkeflostrand
-
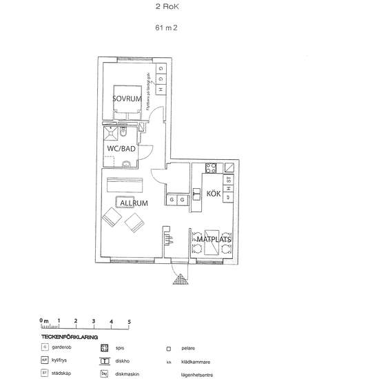
Area
- 61 m²
-
Property type
- Apartment
-
Rooms
- 2 rooms
Välkommen till denna 2 rum och kök i Bunkeflostrand, Skomakarebyn. Lägenheten ligger på andra våningen. Parkeringsplatser finns tillgängliga i området och hyrs separat. Deposition tillkommer om 1-3 månadshyror på första hyresavin. Tänk på att vara noggrann med att fylla i alla nödvändiga uppgifter som efterfrågas då det ökar dina chanser till att bli erbjuden en lägenhet. Bilderna i annonsen är exempelbilder och generella för denna fastighet. Se planritning för korrekt planlösning samt övrig info i annons. OBS: Vi reserverar oss för ...
- Rent
- kr9,178 per month
- Location
- 21841, Bunkeflostrand
- Rental period
- -
- Verified landlord
- Yes
- Date
- Today
- Available
- 2026-03-01
- Utilities
- Contact landlord
- Deposit
- Contact landlord
- Prepaid rent
- Contact landlord
Location