1 room apartment in Växjö
-
Area
- 29 m²
-
Property type
- Apartment
-
Rooms
- 1 room
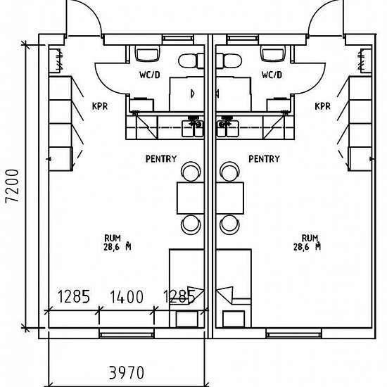
På Campus Teleborg finns ljusa och välplanerade lägenheter om 1 Rok om 29 kvm med eget kök och badrum. Lägenheterna är belägna i loftgångshus med egen ingång. Bra att veta • I hallen finns inbyggd förvaring. • Kök är utrustade med kombinerad kyl/frys, spis med ugn och diskbänk. • I hyran ingår värme, elförbrukning, kall- och varmvattenförbrukning samt internet (250/250). • Hyresfritt juli och augusti. • Hyran är angiven för 2025 års nivå och kommer att justeras för år 2026 efter att hyresförhandlingarna är klara. • Bilderna är exempelbilder,...
- This accommodation has priority for students
- Rent
- kr5,155 per month
- Location
- 35255, Växjö
- Rental period
- -
- Verified landlord
- Yes
- Date
- 2 days ago
- Available
- 2026-02-01
- Utilities
- Contact landlord
- Deposit
- Contact landlord
- Prepaid rent
- Contact landlord
Location