1 room apartment in Västra Frölunda
-
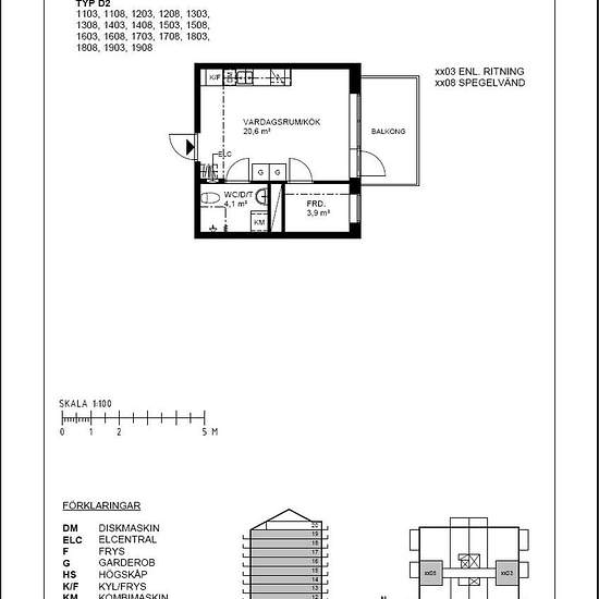
Area
- 29 m²
-
Property type
- Apartment
-
Rooms
- 1 room
Välplanerad etta med balkong! Denna välplanerade etta om 29,1 kvm innehar öppna ytor och rikligt med ljusinsläpp. Du förs in till en modernt planerad etta som har luftiga ytor för vardagsrum och kök, båda med moderna ljusa ytskikt. Helkaklat badrum med dusch och kombimaskin. Hyran avser 2025 års hyresnivåer. Standardinfo om lägenheten: Väggarna är vitmålade och golven består av parkett i samtliga rum. Badrummet är helkaklat i en ljusgrå ton och är utrustat med kombinerad tvättmaskin och torktumlare. Köket har vita skåpsluckor med grå bänk...
- Rent
- kr7,701 per month
- Location
- 42141, Västra Frölunda
- Rental period
- -
- Verified landlord
- Yes
- Date
- Yesterday
- Available
- 2026-07-01
- Utilities
- Contact landlord
- Deposit
- Contact landlord
- Prepaid rent
- Contact landlord
Location