1 room apartment in Västra Frölunda

Area
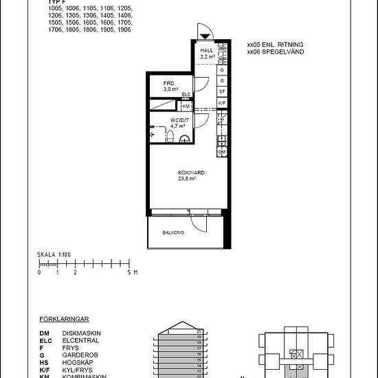
34 m²
Property type
Apartment
Rooms
1 room

Välplanerad etta med balkong! Denna välplanerade och ljusa etta om 34,4 kvm innehar stora öppna ytor och rikligt med ljusinsläpp. Du välkomnas av en hall med goda förvaringsmöjligheter som ansluter till kök och toalett, båda med moderna ytskikt. I anslutning till köket förs du vidare till vardagsrummet som har rikligt med ljusinsläpp och tillgång till balkong. Helkaklat badrum med dusch och kombimaskin. Standardinfo om lägenheten: Väggarna är vitmålade och golven består av parkett i samtliga rum. Badrummet är helkaklat i en ljusgrå ton oc...

Rent
kr7,934 per month
Rental period
-
Verified landlord
Yes
Date
Yesterday
Available
2026-04-01
Utilities
Contact landlord
Deposit
Contact landlord
Prepaid rent
Contact landlord
Location