1 room apartment in Osby
-
Area
- 56 m²
-
Property type
- Apartment
-
Rooms
- 1 room
Available now
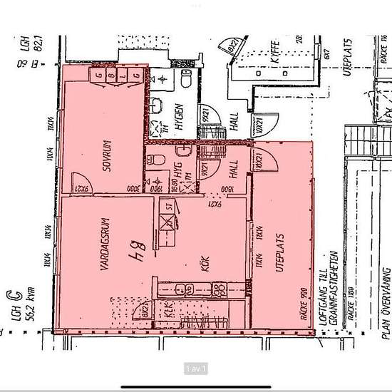
First‑hand lease for a bright and pleasant 2-room apartment on the 2nd floor with a central location in Osby at Norra Tvärgatan 10 C. There is a covered patio facing the inner courtyard. Storage is available in the basement. Available: 1 March 2026. Rent: SEK 6,245/month (heating, water & waste disposal included) (rent for 2026). Area: 56.2 sqm. We are looking for a reliable tenant with stable finances who has no pets. A credit check will be carried out.
- Rent
- kr6,245 per month
- Location
- 28335, Osby
- Rental period
- -
- Verified landlord
- No
- Date
- 21 days ago
- Available
- Available now
- Utilities
- Contact landlord
- Deposit
- Contact landlord
- Prepaid rent
- Contact landlord
Location